Kupite

STAN PO VAŠOJ MERI

Status nekretnine

PRODATO AKCIJA

STAN BROJ 11

Prokuplje

ugao ul. Moravske i Pojatske

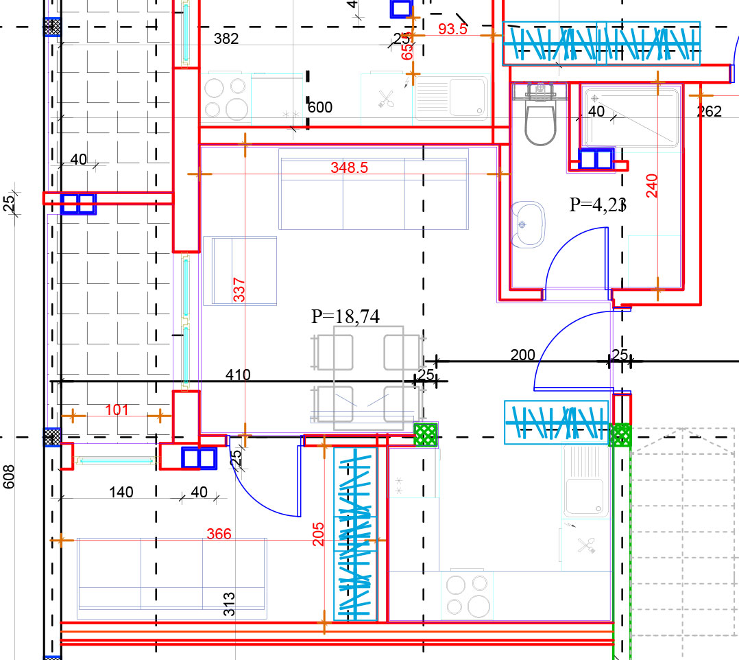
sqf 33 m2
Lamela 1, Zgrada 1, Potkrovlje
1 Soba(e)
1 Kupatilo(a)
1 Parking(a)

TEHNIČKI OPIS:


Spoljašnja stolarija je izrađena od PVC profila sa termopan staklom, unutrašnja stolarija je MDF sa melaminskom folijom. Podna obloga u stambenim prostorijama je od parketa ili laminata d=12mm, klase 33, a u hodnicima i terasama obloga je od keramike.

Zidovi i podovi sanitarnih prostorija su obloženi keramikom i opremljene su sanitarnim elementima sa tuševima u nivou podova i ugradnim vodokotlićima.

Stan broj 11

Enterijer i eksterijer

  • Dvorište
  • Terasa
  • Mobilijar
  • Kupatilski nameštaj
  • PVC stolarija
  • laminat
  • Optika

Mapa

ugao ul. Moravske i Pojatske

Video

Image
TOPLIČKA PANORAMA DOO
Partizanska 2a
18400 Prokuplje
Tel: 062 24 74 57
Matični broj: 21722707
PIB: 112704127

toplickapanorama@gmail.com

TOPLIČKA PANORAMA


Stambeni kompleks Panorama prostire se na 2 hektara površine.

Sastoji se od 15 dvospratnih zgrada i 30 kuća različitih spratnosti, sa dvorištem. U okviru kompleksa su natkrivena parking mesta i garaže.

Moderni stanovi i kuće različitih struktura, od 30m2 do 70m2, raspoređeni su u više lamela koje predstavljaju kompaktnu celinu.

PRATITE NAS NA DRUŠTVENIM MREŽAMA

Save
Cookies user preferences
We use cookies to ensure you to get the best experience on our website. If you decline the use of cookies, this website may not function as expected.
Accept all
Decline all
Read more
Analytics
ANALITIČKI
Google Analytics
Accept
Decline
Facebook
Facebook
Accept
Decline